
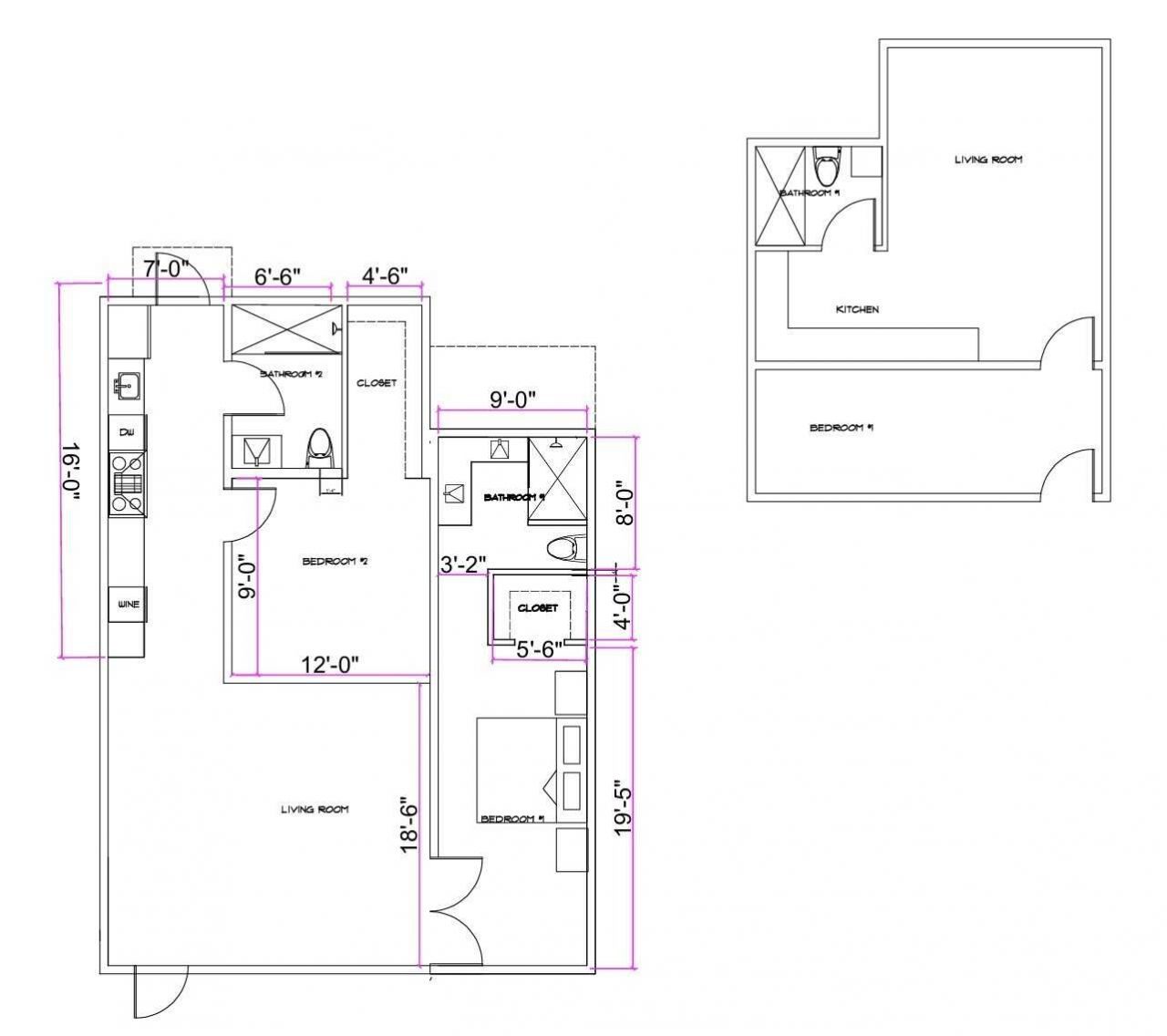
OPPORTUNITIES ARE ENDLESS! TWO lots and TWO units sitting on a 10,000 sq ft lot of spacious Florida Keys living! These two houses have been remodeled from top to bottom, sparing no details, offering brand-new roofs, windows, appliances and finishes.The vacant lot offers room to expand the main house, add a pool, detached garage, a putting green or pickle ball court, all while boasting ocean views from across the street. This property is within walking distance to Snappers Oceanfront Restaurant a...OPPORTUNITIES ARE ENDLESS! TWO lots and TWO units sitting on a 10,000 sq ft lot of spacious Florida Keys living! These two houses have been remodeled from top to bottom, sparing no details, offering brand-new roofs, windows, appliances and finishes.The vacant lot offers room to expand the main house, add a pool, detached garage, a putting green or pickle ball court, all while boasting ocean views from across the street. This property is within walking distance to Snappers Oceanfront Restaurant and across the highway from Mike Forster Public boat ramp. The opportunities are truly endless to move right in, expand the existing home, or add an accessory structure, garage and/or pool!
View MoreCourtesy of
Agency Name: Berkshire Hathaway HomeServices Keys Real Estate - Islamorad
Agency Phone: (305) 664-4444
Agent Name: Kelsey Caputo - Frins
Presented by
Agent Name: Julie Serrao
Agent Phone: 772.233.8375
Agency Title: The Keyes Company
Request Info
Send an email with a link to
15 Seaside Avenue, Key Largo, FL 33037.
Email 15 Seaside Avenue, Key Largo, FL 33037
Thank you for your inquiry! As a thank you, we have a Special Mortgage Offer for You.
We would like to provide you a free, no-obligation, home loan pre-approval review.