
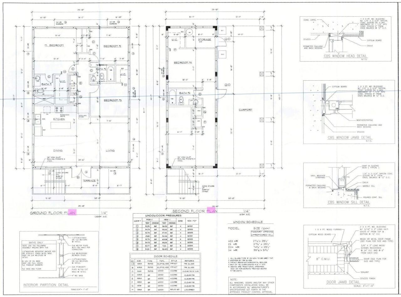
READY TO BUY AND BUILD? Vacant lot with approved plans for a 3BD / 2BD upstairs, and 1BD / 1BA downstairs. 40 ROGO POINTS. Located in X FLOOD ZONE. Within walking distance to multiple great restaurants and only 1 Mile from Publix! The neighborhood is right next to John Pennekamp where your buyers can easily access a public boat ramp, beach, and more! Great opportunity to purchase in the Florida Keys and make it their own! The permit number is 19302067
Courtesy of
Agency Name: Berkshire Hathaway HomeServices Keys Real Estate - Islamorad
Agency Phone: (305) 664-4444
Agent Name: Kelsey Caputo - Frins
Presented by
Agent Name: Julie Serrao
Agent Phone: 772.233.8375
Agency Title: The Keyes Company
Request Info
Send an email with a link to
323 Mahogany Drive, Key Largo, FL 33037.
Email 323 Mahogany Drive, Key Largo, FL 33037
Thank you for your inquiry! As a thank you, we have a Special Mortgage Offer for You.
We would like to provide you a free, no-obligation, home loan pre-approval review.